Kombination Einzelraumausführung mit getrenntem WC

Eigenschaften der Sozialcontainer-Kombination mit WC:

  • Einzigartige Konstruktion, von SÄBU entwickelt und vermarktet, mit prüffähiger Statik
  • Ausführung nach Energieeinsparverordnung EnEV „niedrige Innentemperatur“ vom 02.12.2004 nach DIN V 4108-6:2003-06 und nach Heizungsanlagenverordnung DIN V 4701-10:2003-08
    Dämmung des Daches: U=0,236W/m²K
    Dämmung der Wand: U=0,474W/m²K
    Dämmung des Bodens: U=0,211W/m²K
  • Mit Außenwandlackierung in RAL 7035 Lichtgrau
  • Optional: Außenwandlackierung in den Standardfarbtönen: 
    RAL 1003, RAL 3000, RAL 5010, RAL 6010 und RAL 9002
    Weitere Farbtöne auf Anfrage

Ausstattung:

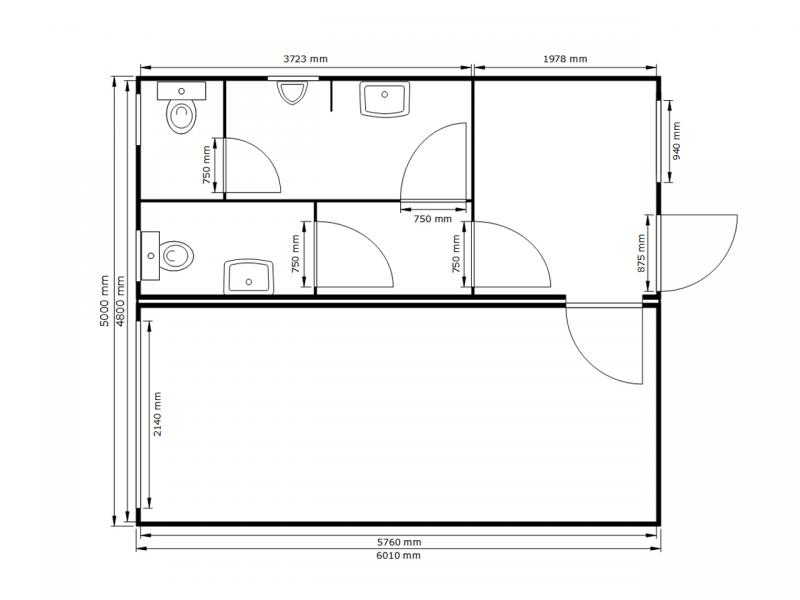
  • 1 Fenster 2.140 x 1.370 mm, 1 Fenster 940 x 1.370 mm,
    1 Außentür 875 x 2.000 mm (DIN rechts), Zwischenwände mit 3 Innentüren,
    1 Übergangszarge mit Innentür, Kupplungsverbindung zwischen den Modulen

    Damentoilette ausgestattet mit: 1 Tiefspülklosett mit Spülkasten, 1 Handwaschbecken,
    1 Kippfenster

    Herrentoilette ausgestattet mit: 1 Toilettenkabine, 1 Urinal, 1 Schamwand,
    1 Handwaschbecken, 2 Kippfenster

Elektroinstallation:

  • 5 Schalter, 4 Steckdosen, 4 Heizungssteckdosen, 3 Langfeldleuchten 1x58 W,
    2 Langfeldleuchten 1x36 W, 1 Langfeldleuchte 1x18 W 

Abmessungen:

  • B 6.000 mm x T 5.000 mm x H 2.945 mm - Außenmaß
  • B 5.800 mm x T 4.800 mm x H 2.500 mm - Innenmaß

Gewicht:

  • ca. 4.300 kg

 

Weitere Informationen erhalten Sie im FLADAFI®-Shop

Ansprechpartner Lars Rörig
Herr Lars Rörig
Fachberater für Raum- und Lagertechnik